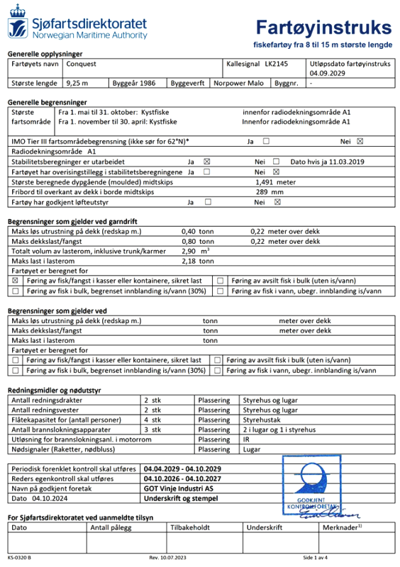
Conquest LK2145
Spesifikasjon
Fartøytype
Malo
Rigget for
Garn, line og delvis juksa
Bygget
1986, Malo
Kallesignal
LK2145
Lengde
9.20
Bredde
3.30
Klasse/klassedato
Fornyet fartøysinstruks i 2024
Fartsområde
Kystfiske
Siste stabilitetstest utført:
2018
Byggemateriale
Plast
Fart og forbruk
8 mil / 12-14 L
Sertifisert for antall personer
2
Maskineri
Hovedmotor
Perkins, 2018
HK
190 HK
Antall timer, pr dato
ca 2200 t per 08.08.2024
Gir
HVP 65 / 2018
Propellsystem
Nogva
Siste Akseltrekk
Steffensen, februar 2018
Batteri
Forbruk skiftet i 2019. Startbatteri skiftet i 2021
Styremaskin
Tennfjord
Pumper
Ny lense og spylepumpe i 2018
Kapasitet
Diesel
ca. 700 l
Ferskvann
ca. 250 l
Ballast
Ja
Lastekapasitet CBM/tonn
Cotainere 2 stk. alu ig 4 stk plast (ca. 3500 kg uten problem med stabilitet)
Dekksutstyr
Garngreier
Ja
Garngreie arm
Ja
Garnspill
Ja
Garnstopper
Ja
Renner
Ja
Juksamaskin
5 stk
Linkveiler
Ja
Linesetter
Ja
Belysning dekk
Led
Landstrøm
Ja
Annet dekksutstyr
Bomvinsj, ikke godkjent
Elektronikk
Ekkolodd 1Furuno
Kartplotter 1Olex
Radar 1Blir montert en Furuno før salg
GPS 1Furuno
GPS 2Garmin
Gyrokompass/satellittkompassSatellittkompass, Simrad
AISJa
VHF 1Ja
AutopilotSimrad
Søkelyskaster 1Ja
Roterende vinduJa
Forbruksmåler motor/økonometerJa
Sikkerhetsutstyr
I henhold til klasseJa
Annet sikkerhetsutstyr2 stk. overlevelsesdrakter + vester
Innredning
TVNei
Dab radioJa
Lugarer2 stk køyer
Dusj/WCJa
ProviantkjølingJa
Annen innredningNy pyro i 2019
Diverse opplysninger
Gjennomført hovedklassing i 2024
Fartøyet leveres med ny propell
Fartøyet leveres med ny propell
Prisantydning
Vennligst kontakt vårt kontor
Detaljene antas korrekte men kan ikke garanteres
Maritime Competence AS
Tlf: (+47) 776 67240,
e-post: post@macom.no